IMPLANTACIÓN

Inicio / Monta tu ferretería / Implantación Provincia de sevilla

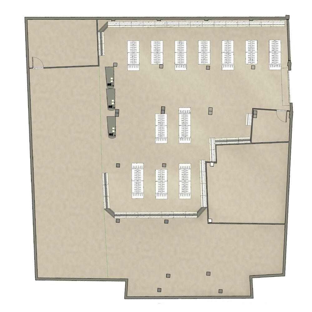
Implantación: Provincia de Sevilla

Provincia de Sevilla

Implantación de ferretería mixta: industial y doméstica realizada en la provincia de Sevilla.
DATOS IMPLANTACIÓN:

 

- Ubicación: Calle principal.

- Tamaño local: 80 m2.

- Metros lineales de expositores: 16 lineales.

El cliente, asesorado por nuestro equipo de implantaciones, opta por surtido muy variado que abarca desde herramientas y bricolaje, pasando por electricidad básica y fontanería, menaje y jardín.

Además del asesoramiento de la gama de productos, nuestro cliente, y en ese caso su ferretería ha contado con los siguientes servicios:

· Estudio del local e iluminación.

· Realización de planos.

· Diseño las zonas de venta.

· Propuesta de gamas de productos.

· Lineales atractivos, duraderos y funcionales.

· Cabeceras adaptadas al producto expuesto.

· Posibilidad de tener todo el stock en exposición, eliminando almacén.

· Servicio llave en mano.

· Resultado óptimo, ubicación coherente del producto por gremios / usos.

· Imagen de negocio bien estructurado.


Galería de imágenes


Contacta con nosotros y monta tu ferretería

Rellena el siguiente formulario
Y VENDE WOLFPACK

Rellene este formulario y nos pondremos en contacto con usted en el menor tiempo posible
¿De dónde es la empresa?

*Abstenerse particulares, sólo venta a tiendas y empresas minoristas y mayoristas.